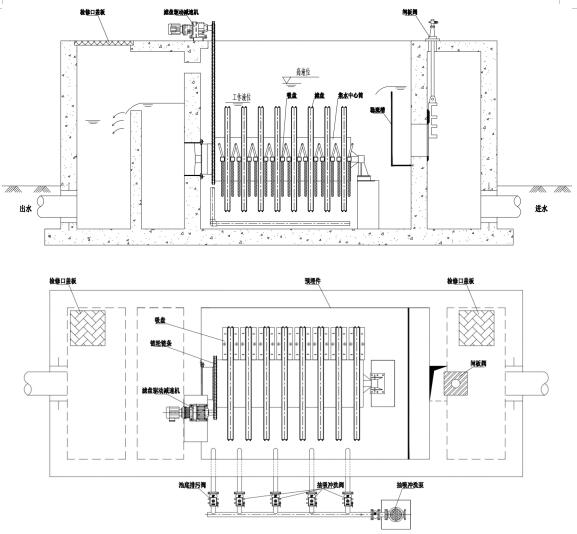
工作原理
外进里出式转盘过滤器由一系列水平安装的旋转过滤盘组成,每个过滤转盘由以偶数的扇形过滤板组合而成,转盘上装有可方便拆卸的滤布,滤布材质为纤维,滤布的过滤孔径为10um。
纤维转盘滤池的运行状态包括:过滤、反冲洗、排泥状态。
(1)过滤
污水重力流进入滤池,滤池中设有布水堰。滤布采用全淹没式,污水通过滤布外侧进入,过滤液通过中空管收集,重力流通过出水堰排出滤池。整个过程为连续式。
(2)清洗
过滤中部分污泥吸附于滤布外侧,逐渐形成污泥层。随着滤布上污泥的积聚,滤布过滤阻力增加,滤池水位逐渐升高。通过压力传感器监测池内液位变化。当该池内液位到达清洗设定
(高水位)时,PLC即可启动反抽吸泵,开始清洗过程。清洗时,滤池可连续过滤。
过滤期间,过滤转盘处于静态,有利于污泥的池底沉积。清洗期间,过滤转盘以1转/2分钟的速度旋转。抽吸泵负压抽吸滤布表面,吸除滤布上积聚的污泥颗粒,过滤转盘内的水自里向外被同时抽吸,并对滤布起反清洗作用。瞬时冲洗面积仅占全过滤转盘面积的1%左右。反冲洗过程为间歇。
清洗时,2个滤盘为一组,通过自动切换抽吸泵管道上的电动阀控制,纤维转盘滤池一个完整的清洗过程中各组的清洗交替进行,其间抽吸泵的工作是连续的。当进水水质突然之间恶化,池内液位迅速上升到反洗液位,清洗时同时启动所有反冲洗泵,可同时对几组过滤转盘进行反冲洗,直至反冲洗周期恢复正常。
(3)排泥系统
纤维转盘滤池的过滤转盘下设有斗形池底,以利于池底污泥的收集。污泥池底沉积减少了滤布上的污泥量,可延长过滤时间,减少反洗水量。经过一设定的时间段,PLC启动排泥泵,通过池底穿孔排泥管将污泥回流至厂区排水系统。其中,排泥间隔时间及排泥历时可以调整。



设备组成
滤池:为方形池,根据用户需要可采用钢混凝土结构或碳钢箱体、不锈钢箱体。
滤盘:纤维滤布及塑料骨架组成。
反洗装置:清洗抽吸泵及带动滤盘转动的减速机和链轮传动机构。
排泥装置:滤盘底部集泥便于污泥的沉淀及收集排放。
| 名称 | |||
| 处理流量 | 15m³/h | 25m³/h | 40m³/h |
| 滤布直径 | 1000mm | 1600mm | 2000mm |
| 滤盘数量 | 2-8 盘 | 2-10 盘 | 2-10 盘 |
| 过滤面积 | 1.7m²/单盘 | 2.5m²/单盘 | 4.5m²/单盘 |
| 滤速 | 8-15m | 8-15m | 8-15m |
| 进水 SS | ≤40mg/L | ≤40mg/L | ≤40mg/L |
| 出水 SS | ≤10mg/L | ≤10mg/L | ≤10mg/L |
| 滤盘骨架材质 | 增强工程塑料 | 增强工程塑料 | 增强工程塑料 |
| 滤布材质 | 纤维滤布 | 纤维滤布 | 纤维滤布 |
| 集水中心筒材质 | 不锈钢 | 不锈钢 | 不锈钢 |
| 滤池箱体材质 | 碳钢、不锈钢 | 碳钢、不锈钢 | 碳钢、不锈钢 |
| 驱动功率 | 0.37 kW | 0.37 kW | 0.37 kW |
| 抽吸清洗泵功率 | 2.2 kW | 2.2 kW | 2.2 kW |
| 清洗流量 | 25m³/h | 25m³/h | 25m³/h |
| 清洗周期 | 0-300min | 0-300min | 0-300min |
| 清洗时间 | 2min/两盘 | 2min/两盘 | 2min/两盘 |
| 水头损失 | 250mm | 250mm | 300mm |
| 过滤形式 | 重力过滤 | 重力过滤 | 重力过滤 |
| 外形尺寸 | 3550×1260×1750 | 4800×1800×2500 | 6000×2310×3000 |
*.对于更大的流量、不同水质的选型,使用方式及其他技术参数请咨询本公司,本公司有权对型号及参数如修改,不另行通知。
水泥池式技术参数:
| 名称 | |||||
| 处理流量 | 15m³/h/单盘 | 25m³/h/单盘 | 40m³/h/单盘 | 65m³/h/单盘 | 100m³/h/单盘 |
| 滤盘直径 | 1000mm | 1600mm | 2000mm | 2500mm | 3000mm |
| 滤盘数量 | 2-8 pcs | 2-10 pcs | 2-10 pcs | 2-12 pcs | 2-12 pcs |
| 过滤面积 | 1.7m²/单盘 | 2.5m²/单盘 | 4.5m²/单盘 | 7.5m²/单盘 | 12.0m²/单盘 |
| 滤速 | 8-15m | 8-15m | 8-15m | 8-15m | 8-15m |
| 进水 SS | ≤40mg/L | ≤40mg/L | ≤40mg/L | ≤40mg/L | ≤40mg/L |
| 出水 SS | ≤10mg/L | ≤10mg/L | ≤10mg/L | ≤10mg/L | ≤10mg/L |
| 滤盘骨架材质 | 增强工程塑料 | 增强工程塑料 | 增强工程塑料 | 增强工程塑料 | 增强工程塑料 |
| 滤布材质 | 纤维滤布 | 纤维滤布 | 纤维滤布 | 纤维滤布 | 纤维滤布 |
| 集水中心筒材质 | 不锈钢 | 不锈钢 | 不锈钢 | 不锈钢 | 不锈钢 |
| 滤池箱体材质 | Concrete | Concrete | Concrete | Concrete | Concrete |
| 驱动功率 | 0.37 kW | 0.37 kW | 0.55 kW | 0.55 kW | 0.55 kW |
| 抽吸清洗泵功率 | 2.2 kW | 3.0 kW | 3.0 kW | 4.0 kW | 4.0 kW |
| 清洗流量 | 25m³/h | 25m³/h | 25m³/h | 25m³/h | 25m³/h |
| 清洗周期 | 0-360min | 0-360min | 0-360min | 0-360min | 0-360min |
| 清洗时间 | 2min/两盘 | 2min/两盘 | 2min/两盘 | 2min/两盘 | 2min/两盘 |
| 水头损失 | 250mm | 250mm | 300mm | 350mm | 350mm |
| 过滤形式 | 重力过滤 | 重力过滤 | 重力过滤 | 重力过滤 | 重力过滤 |
| 池体外形尺寸 | 8300×2200×2200 | 8700×2800×2200 | 8750×3200×2600 | 10100×3800×2700 | 10200×4300×2800 |
*.对于更大的流量、不同水质的选型,使用方式及其他技术参数请咨询本公司,本公司有权对型号及参数如修改,不另行通知。





滤器的结构:
滤布转盘微滤器主要由;滤池箱体、滤盘组、滤盘抽吸反洗机构、排泥管机构、滤盘集水中心筒、滤盘清洗驱动机构、自动控制器、抽吸清洗泵、自控阀。
1、滤池箱体:不锈钢或碳钢焊接,箱体结构紧凑,重量轻,占地面积小。可调节水位落差的大小。
2、滤组盘:每个滤盘由3-12个独立的扇形滤盘分片组成一个圆滤盘,圆形滤盘中间空心的,两个上圆面覆盖滤布,滤盘两侧为过滤面,中间空心部为清水区。滤毛的深度储存俘获的粒子,减少正常运行时的水头损失。每个滤布滤盘至少有5.2m2、13m2的有效浸没过滤面积,且容易从装置上取出。
3、滤盘抽吸反洗机构 :由反洗吸盘、管道、反洗吸盘支架部件等组成。用于滤布的抽吸清洗。
4、排泥机构 :由排泥吸口、管道、排泥吸口支架部件等组成。用于清理滤池底部的污泥。
5、滤盘集水中心筒:污水经滤盘后通过集水中心筒流入出水箱。多个滤盘安装于集水中心筒上,清洗时驱动减速机带动中心筒及滤盘旋转。
6、滤盘驱动机构:由减速机、链轮、链条等组成,用来带动集水中心筒和滤盘组的旋转运动。
7、控制器:用于控制滤盘清洗、排泥的过程,使其运行自动化,并可就地设置反洗间隔时间、排泥间隔时间。
8、抽吸清洗泵、自控阀、管道组成滤盘清洗和排泥系统。
工艺运行方式
滤布转盘微滤器的运行状态包括:滤盘静态过滤过程、负压泵抽吸清洗过程、排泥过程。
(1)静态过滤过程:污水重力流进入滤池,滤池中设有进水挡板稳流。污水通过滤盘两侧滤布进行过滤,过滤液通过集水中空筒收集,重力流通过溢流槽排出滤池。整个过程为连续。
(2)根据液位差逐渐升高。通过液位控制器检测池内的水位高度。当该水位达到反洗设定值(高水位)时,控制器即可起动抽吸清洗泵和滤盘驱动减速机及自控阀,对滤盘进行抽吸反冲洗。反洗时,滤池连续过滤出水。
过滤期间,滤盘处于静态,污水进入稳流槽后在进入滤池,污水中较大悬浮物在滤池中沉淀,污物在滤池底部沉积。
滤盘清洗期间,滤盘以2转/分的速度旋转。抽吸冲洗泵通过吸盘负压抽吸滤布表面,吸除滤布上的积聚的污泥颗粒,滤盘内的水被同时抽吸,水自里向外对滤布进行反冲洗,并通清洗过管路排出反洗污水。抽洗面积仅占全滤盘面积的1%,反冲洗过程为间歇,通过液位和时间控制反清洗程序。
(3)排泥过程:滤布转盘过滤器的滤盘下设有斗形池底,有利于池底污泥的收集。污泥池底沉积减少了滤布上的污泥量,可延长过滤时间,减少反洗水量。
控制说明
1、系统设有自动和手动两种模式:
自动模式;操作人员根据污水情况设置好过滤时间和反洗时间,滤池即可按照控制器预先设定的程序(按时间、液位控制)进行工作;
手动方式仅在滤池调试或检修时使用,实现自控阀、抽吸反洗泵、滤盘驱动减速机的手动控制。
2、控制器并设有强制功能,强制功能是滤池在运行状态或停机状态多能完成一次自动清洗程序。
3、低液位保护功能;滤池内水位在低液位时,控制器是无法启动自动清洗程序和强制清洗程序。
4、高液位:当滤池水位到达设定上限位即自动启动清洗程序,完成清洗程序后恢复至过滤状态。
5、故障报警提示功能;自控阀的开、关不到位检测,对泵和减速机的过载检测,滤盘堵塞的报警功能。
产品应用
用于污水的深度处理,设置于常规活性污泥法、延时曝气法、SBR系统、氧化沟系统、滴滤池系统、氧化塘系统二沉池之后。
用于冷却循环水处理、废水的深度处理后回用。作为冷却水、循环水过滤后回用:进水水质SS≤80mg/L以下,出水水质SS≤20mg/L。
用于以下领域: ①去除总悬浮固体 ②结合投加药剂可去除磷 ③可去除重金属等。
用于过滤活性泥终沉池出水,设计水质:进水SS:40mg/L(最高可承受80-100mg/L),出水SS≤10mg/L,浊度≤2 NTU。
控制系统
采用工业单片PLC自动控制,中文或英文显示。可根据压差或定时控制过滤器自动清洗,并可手动、强制清洗。现场可设定过滤时间、清洗时间。运行信号、清洗信号、故障信号输出及485通讯接口。